404 m² Çok Katlı Konteyner Ofis Binası
404 m² çok katlı konteyner ofis, orta ölçekli projelerde yönetim ve operasyon birimlerini tek çatı altında toplamak için ideal bir çözümdür. Katlı yapısıyla alandan tasarruf sağlarken; toplantı odaları, yönetici ofisleri ve ortak kullanım alanlarıyla işlevsellik sunar. Güçlendirilmiş taşıyıcı sistemi ve yüksek yalıtımıyla her mevsimde konforlu bir kullanım sağlayan bu yapı, uzun vadeli projelerde güvenilir bir merkez görevi üstlenir.
546 m² Çok Katlı Konteyner Ofis Binası
546 m² çok katlı konteyner ofis, büyük ölçekli şantiyelerde geniş ekiplerin yönetim ve koordinasyonunu kolaylaştıracak şekilde tasarlanır. Birden fazla kat üzerinde planlanan ofisler; arşiv odaları, toplantı salonları ve dinlenme alanlarıyla profesyonel bir çalışma ortamı sunar. Modüler sistem yapısı sayesinde saha ihtiyaçlarına göre özelleştirilebilen bu ofisler, dayanıklılığı ve işlevselliğiyle prestijli bir çözüm haline gelir.
604 m² Çok Katlı Konteyner Ofis Binası
604 m² çok katlı konteyner ofis, yüksek personel yoğunluğuna sahip projelerde operasyonel süreçleri merkezi bir noktadan yönetmek için uygundur. Katlı yapıda düzenlenmiş ofisler; yönetim odaları, sosyal alanlar, mutfak ve WC üniteleriyle donatılarak eksiksiz bir kullanım imkânı sunar. Yüksek mukavemetli taşıyıcı sistemi, uzun ömürlü panel yapısı ve dört mevsime uygun yalıtımıyla bu binalar, kalıcı nitelikteki sahalar için tercih edilir.
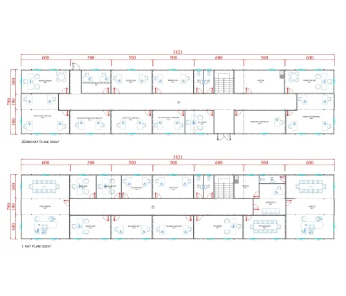
664 m² Çok Katlı Konteyner Ofis Binası
664 m² çok katlı konteyner ofis, büyük ölçekli projelerde tüm idari birimleri, teknik departmanları ve sosyal alanları tek merkezde buluşturabilecek kapasitededir. Katlı mimarisi sayesinde geniş kullanım alanları oluşturulabilir; modern iç düzenlemelerle estetik ve işlevsel bir ofis deneyimi sağlanır. Demonte Prefabrik’in mühendislik gücüyle üretilen bu yapılar, uluslararası standartlarda güvenilirlik ve konfor sunarak projelere prestij katar.