98 m² Okul ve Eğitim Binası
98 metrekarelik bu kompakt eğitim binası, küçük ölçekli sınıf ihtiyaçlarına pratik ve hızlı bir çözüm sunar. Kırsal bölgelerdeki ilkokullar, ana sınıfları ya da geçici derslik yapıları için ideal olan bu yapı, yüksek yalıtım değerleriyle dört mevsim konfor sağlar. Kısa sürede kurulabilir olması, acil eğitim ihtiyacına cevap verirken; modüler yapısıyla gerektiğinde genişletme olanağı da sunar.
206 m² Okul ve Eğitim Binası
206 metrekarelik okul yapısı, birden fazla sınıf, idari ofis ve ortak alanın birlikte planlanabildiği, orta ölçekli eğitim projeleri için uygun bir çözümdür. Hafif çelik taşıyıcı sistemle inşa edilen bu yapı, hem dayanıklı hem de estetik bir görünüm sunar. Enerji verimliliği sağlayan yalıtım özellikleri ve hızlı kurulum avantajı sayesinde farklı iklim koşullarında da işlevselliğini korur.
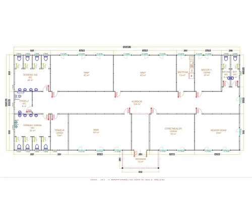
353 m² Okul ve Eğitim Binası
353 m²'lik okul binası, çok sınıflı eğitim kurumları için ideal bir planlamaya sahiptir. Dersliklerin yanı sıra öğretmen odası, toplantı salonu veya küçük bir kütüphane gibi fonksiyonel alanların entegre edilebildiği bu yapı, sürdürülebilirliği ve uzun ömürlü kullanım özellikleriyle dikkat çeker. Kurumsal eğitim kampüslerinden köy okullarına kadar geniş bir kullanım alanı sunar.
434 m² Okul ve Eğitim Binası
434 metrekarelik geniş iç hacmiyle bu yapı, orta ölçekli eğitim kampüsleri ya da çok sınıflı okullar için uygundur. Sosyal alanlar, laboratuvar veya çok amaçlı salon gibi destek birimleri eklenebilir. Demonte Prefabrik'in uzmanlığı sayesinde yapının kurulumu hem hızlı hem de güvenlidir. Modern mimari detaylarıyla hem öğrenciler hem de öğretmenler için ideal bir öğrenme ortamı oluşturur.
501 m² Okul ve Eğitim Binası
501 m²’lik bu yapı, dersliklerin yanı sıra çok amaçlı salon, idari ofis ve sosyal alanlara sahip kapsamlı bir okul çözümüdür. Eğitim kalitesini artıran ergonomik iç mekan kurgusu ve yüksek yalıtım kapasitesiyle, hem verimli hem de konforlu bir ortam sağlar. Şehir merkezlerinden uzak bölgelerdeki yatırım projeleri için taşıma, montaj ve dayanıklılık açısından yüksek avantaj sunar.
525 m² Okul ve Eğitim Binası
525 metrekarelik bu eğitim binası, geniş sınıf düzenlemeleri ve ortak alan gereksinimleri için esnek çözümler sunar. Afet bölgelerinde geçici okul olarak ya da kalıcı eğitim tesisi olarak kullanılabilen bu yapı; modülerliği sayesinde farklı eğitim seviyelerine uyarlanabilir. Estetik dış cephe seçenekleriyle kurumsal bir görünüm sağlar.
692 m² Okul ve Eğitim Binası
692 m²’lik bu yapı, kapsamlı kampüs ihtiyacına yönelik olarak planlanan çok fonksiyonlu bir eğitim binasıdır. Ana sınıfından idari birimlere, yemekhane veya atölye alanlarına kadar pek çok farklı fonksiyon bir arada kurgulanabilir. Yüksek taşıyıcı kapasitesi, ısı ve ses yalıtımı gibi teknik avantajları sayesinde uzun ömürlü, güvenli ve konforlu bir yapı çözümüdür.
1257 m² Okul ve Eğitim Binası
1257 metrekarelik büyük ölçekli bu okul binası, geniş öğrenci kapasitesine sahip projelerde tercih edilir. Çok sayıda sınıf, idari birimler, sosyal alanlar, laboratuvar ve etkinlik salonlarının bir araya geldiği bu yapı, çağdaş eğitim kampüsleri için ideal bir alternatiftir. Kısa sürede kurulumu tamamlanarak zaman tasarrufu sağlar; aynı zamanda güçlü taşıyıcı yapısıyla uzun yıllar boyunca hizmet verir.
1437 m² Okul ve Eğitim Binası
1437 m²'lik bu yapı, eğitim kampüsleri veya özel okul yatırımları için yüksek kapasiteli ve fonksiyonel bir çözüm sunar. Geniş iç hacmi sayesinde sınıflar, yönetim alanları, sosyal etkinlik bölümleri, yemekhane ve dinlenme alanları kolaylıkla planlanabilir. Yüksek yalıtım standartları ve modern mimari tasarımıyla öğrencilere sağlıklı ve verimli bir öğrenme ortamı sunar.
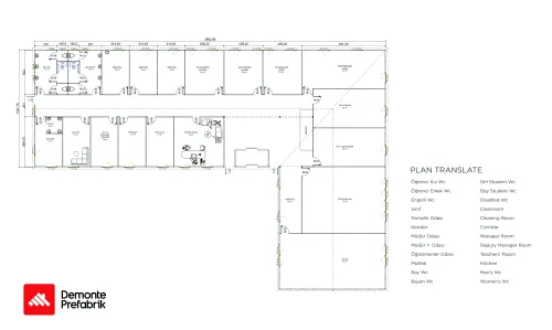
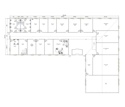
5523 m² Okul ve Eğitim Binası
5523 metrekarelik bu dev eğitim kompleksi, kampüs bazlı projeler, üniversite yerleşkeleri veya eğitim–araştırma merkezleri için geliştirilmiştir. Birden fazla bloktan oluşabilen bu yapı, öğrenci yurdu, konferans salonu, spor alanı ve laboratuvar gibi fonksiyonları bir araya getirerek eksiksiz bir kampüs altyapısı sağlar. Demonte Prefabrik’in mühendislik gücüyle hayata geçirilen bu yapı, modern eğitim dünyasının tüm ihtiyaçlarını karşılar.