155 m² Sosyal Tesis Binası
155 metrekarelik bu kompakt sosyal tesis yapısı, küçük ölçekli topluluklar ve kurumlar için ideal bir çözümdür. Toplantı odası, dinlenme alanı ve küçük bir mutfak bölümü gibi temel işlevleri bir arada sunan bu yapı; hızlı kurulumu, düşük işletme maliyeti ve modüler yapısıyla dikkat çeker. Prefabrik sistemin sunduğu esneklik sayesinde gerektiğinde kolayca genişletilebilir ve taşınabilir.
187 m² Sosyal Tesis Binası
187 m² alana sahip bu sosyal tesis binası, hem kapalı etkinlik alanı hem de sosyalleşme mekânı ihtiyacını karşılayacak şekilde tasarlanır. Spor aktiviteleri, atölye çalışmaları veya seminerler için uygun bir alan sağlayan yapı; yüksek yalıtım kapasitesi ve modern tasarımıyla dört mevsim konfor sunar. Belediyeler ve sivil toplum kuruluşları için pratik ve estetik bir çözümdür.
219 m² Sosyal Tesis Binası
Orta büyüklükteki sosyal organizasyonlar için ideal olan 219 m²’lik bu tesis, çok amaçlı salon, yönetim odası ve servis alanları gibi bölümlerle donatılabilir. Enerji verimli yapısı ve dayanıklı malzemeleri sayesinde uzun ömürlü kullanım sağlar. Topluluk merkezleri, okul kampüsleri veya işçi yaşam alanlarında sosyal birlikteliği destekleyen bir merkez olarak öne çıkar.
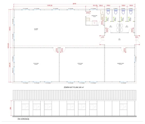
245 m² Sosyal Tesis Binası
245 metrekarelik bu sosyal tesis, çeşitli etkinliklerin eş zamanlı gerçekleştirilebileceği geniş bir iç mekân sunar. Spor salonu, toplantı odası ve dinlenme alanları bir arada planlanabilir. Geniş açıklıklı taşıyıcı sistemler sayesinde ferah ve esnek bir iç düzenleme mümkündür. Kurulumu kısa sürede tamamlanarak kamu hizmetlerine hızla entegre edilebilir.
442 m² Sosyal Tesis Binası
442 m²’lik bu sosyal tesis binası, büyük ölçekli etkinlik ve buluşmalar için tasarlanmıştır. Konferanslar, toplu yemek organizasyonları ve kültürel aktiviteler gibi yoğun katılımlı etkinlikler için yeterli alan sağlar. Bölgelere özel mimari çözümlerle desteklenen yapı, estetik görünümün yanında işlevselliği de ön planda tutar.
591 m² Sosyal Tesis Binası
591 metrekarelik geniş sosyal tesis yapısı, birden fazla etkinliğin aynı anda yürütülebileceği kompleks bir merkez sunar. Çok amaçlı salon, sahne alanı, ofisler, depo ve servis bölümleri gibi fonksiyonlarla donatılabilir. Kamu kurumları, büyük kampüsler ve belediyeler için kalıcı, prestijli ve dayanıklı bir sosyal altyapı çözümüdür. Yüksek yalıtım özellikleri sayesinde iklim dostu bir yapı alternatifi sunar.